Opis
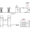
ŠKARJASTO DVIGALO K30/K30L
Izredno nizko škarjasto dvigalo, primerno za vulkanizerje. Platforme so me seboj povezane s dvema torzijema.
en cilinder na vsaki strani
Nosilnost: 3T
dvig: min 95mm max 960mm
čas dviga/spusta: 20sec
Dvigalo se spredaj in zadaj poveča z dvižno platformo.
Več informacij:
http://www.lv8.it/car-lifts-2816/car-lifts/k30k30l-2491.html






Ni še nobene ocene.